Description
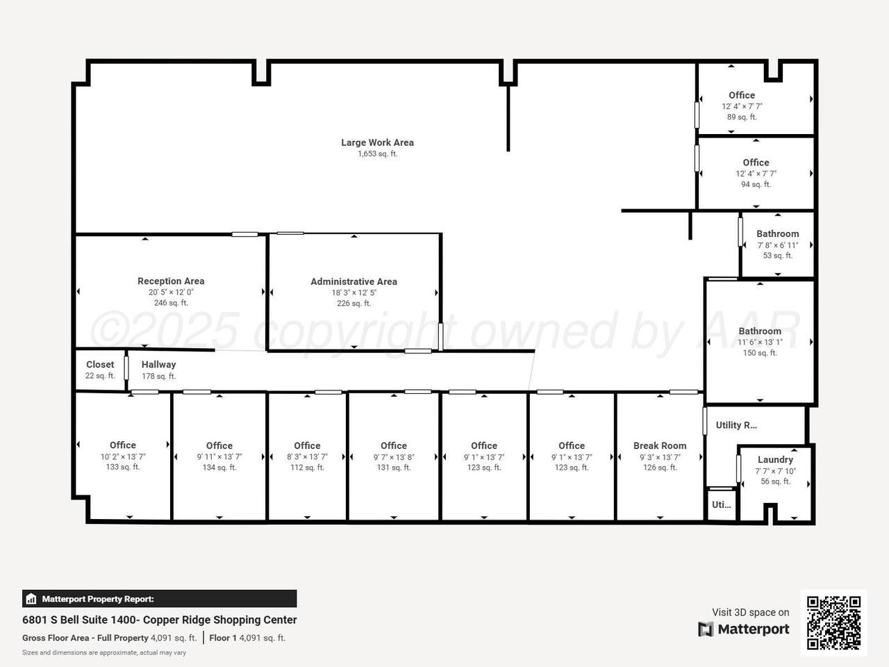
FOR LEASE : Commercial Property : Retail or Office Space 4000 sq ft Available ''Copper Ridge Center'' 6801 Bell Street Suite 1400 Lease rate: $14.00 paf + NNN Triple Net charge: $3.39 psf TOTAL MONTHLY LEASE RATE INCLUDING TRIPLE NET CHARGE = $5796.67 PER MONTH Lease negotiable per lease term Lease Term: 3-5 year preferred Formerly a Physical Therapy office Featuring: 8 offices Receptionist area Administrative Office Large workout area Laundry area Utility Room 2 Restrooms SHOWING: Key is at Gaut Whittenburg RE Office 600 S Tyler, Suite 101 Call office for showing
-
0BEDS
-
N/AACRES
-
0BATHS
-
01/2 BATHS
School Ratings & Info
Description
FOR LEASE : Commercial Property : Retail or Office Space 4000 sq ft Available ''Copper Ridge Center'' 6801 Bell Street Suite 1400 Lease rate: $14.00 paf + NNN Triple Net charge: $3.39 psf TOTAL MONTHLY LEASE RATE INCLUDING TRIPLE NET CHARGE = $5796.67 PER MONTH Lease negotiable per lease term Lease Term: 3-5 year preferred Formerly a Physical Therapy office Featuring: 8 offices Receptionist area Administrative Office Large workout area Laundry area Utility Room 2 Restrooms SHOWING: Key is at Gaut Whittenburg RE Office 600 S Tyler, Suite 101 Call office for showing
