Description
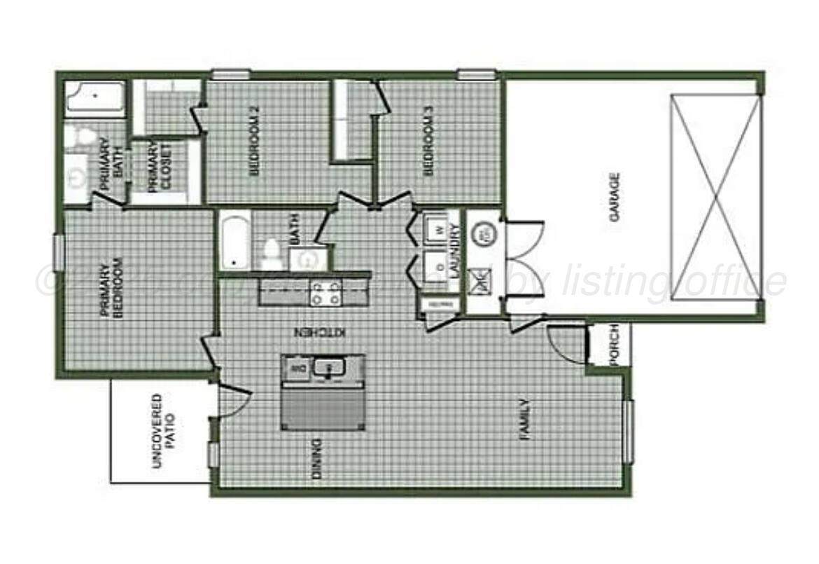
Welcome to Northridge at Mesilla Park-Pampa's newest home development! Seller offering $5000 your way! (See pictures/docs for more details).Step into this thoughtfully designed 3 bedroom, 2 bath home boasting 1,200 square feet of maximized living space. Every inch of this cozy residence has been intentionally crafted for comfort and function.At the heart of the home is a stunning oversized kitchen island -- a true centerpiece -- spacious enough to seat 7 guests with ease, making it perfect for entertaining or casual family meals. The open-concept layout flows seamlessly, creating an inviting and functional atmosphere.Each bedroom features a generously sized walk-in closet, offering ample storage and organization. The centrally located laundry room adds a touch of convenience to
-
3BEDS
-
N/AACRES
-
2BATHS
-
01/2 BATHS
-
1,200SQFT
-
$179$/SQFT
School Ratings & Info
Description
Welcome to Northridge at Mesilla Park-Pampa's newest home development! Seller offering $5000 your way! (See pictures/docs for more details).Step into this thoughtfully designed 3 bedroom, 2 bath home boasting 1,200 square feet of maximized living space. Every inch of this cozy residence has been intentionally crafted for comfort and function.At the heart of the home is a stunning oversized kitchen island -- a true centerpiece -- spacious enough to seat 7 guests with ease, making it perfect for entertaining or casual family meals. The open-concept layout flows seamlessly, creating an inviting and functional atmosphere.Each bedroom features a generously sized walk-in closet, offering ample storage and organization. The centrally located laundry room adds a touch of convenience to
© 2025 Pampa Association of Realtors, Inc. All rights reserved. IDX information is provided exclusively for consumers' personal, non-commercial use and may not be used for any purpose other than to identify prospective properties consumers may be interested in purchasing. Information is deemed reliable but is not guaranteed accurate by the MLS or Lonestar Home & Land Realty. Data last updated: 2025-12-13T23:46:11.993.
